Trial ended

Following community feedback, several elements from the trial were made permanent.

The Te Manawa ō Owhatiura trial aims to create child-friendly streets that allow all people to move safely around our community. The trial project is the first of its kind in Rotorua, and will change the way people drive, walk, bike or scooter through the area on their way to school, work, or the Whakarewarewa Forest.

A working group consisting of students, staff and parents from Lynmore Primary School, local residents, members of Tatau Pounamu and Rotorua Cycle Action and the New Zealand Police are leading this mahi. Rotorua Lakes Council are supporting the working group to manage the project.

We want to know what parts of the design you think are working well, and what parts could be improved. Adjustments will be made to the design during the trial period, based on community feedback. You can also place feedback by emailing cycling@rotorualc.nz. See any project updates or adjustments to the trial layout here.

Project funding

90% of the project costs are funded by Waka Kotahi NZ Transport Agency’s Innovating Streets for People fund, with Rotorua Lakes Council funding the remaining 10%. The project is estimated to be around $100,000.

Updates

Background

In June 2020, Rotorua Lakes Council made an application to Waka Kotahi NZ Transport Agency’s Innovating Streets for People Fund on behalf of Lynmore Primary School and the wider community. The purpose of the fund is to support trial projects that aim to make urban areas vibrant, safe, and easy to move around.

Te Manawa o Owhatiura will change the way people drive, walk, bike or scooter through the area on their way to school, work, or the Whakarewarewa Forest.

There will be more room to move around for children walking, biking and scootering, safer routes to get to school, and slower vehicle speeds. Drivers will have more separation from pedestrians, and less risk of accidents. The roads will be calmer for residents, with less traffic congestion outside the school gates.

Some benefits of the Te Manawa o Owhatiura project could include:

  • Connected communities: creating vibrant and interactive ways to travel around the neighbourhood, and interact with the space and other people
  • Safe, caring communities: encouraging safe behaviour when driving, a more road safety-conscious community, reducing traffic speeds and congestion around the school gates to make the area more people friendly
  • Thriving communities: making more room for people to move freely to access friends, work, leisure and activities, encouraging active travel and happier, healthier people
  • Supporting residential growth: as residential areas grow so will the amount of traffic on our roads. Having safe spaces to travel around separated from cars, encourages more people to walk and bike, and reduces congestion on local roads.

Learnings from the trial will inform any future Innovating Streets projects in other areas of Rotorua.

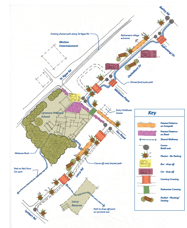
What could the project look like?

The design could experiment with extending the space for walking and biking onto the road, potentially using planter boxes for separation from cars, traffic-calming measures, or adding pictures and games on pathways to add vibrancy and encourage playful interaction.